Projet 4ème année,
Projet de coviliving
Mood Board
Mise en place de nos modules
Notre mise en place sur plan
Mise en volume
Projet Loft
Concept de loft de style personnalisable à but de coliving. Avec une ambiance éclectique mélangeant les horizons et les époques, le décor naissant semble être personnalisable et adapté à tous les goûts et donc louable plus facilement. l’objectif est d’utiliser du mobilier d’occasion permettant de faire des économies sur le prix des meubles, facilement remplaçables, et permet de moins craindre le passage intense des différents résidents du coliving.
Utiliser des matériaux de récupération et du mobilier d’occasion permet de réduire l’empreinte carbone du projet.



Le concept
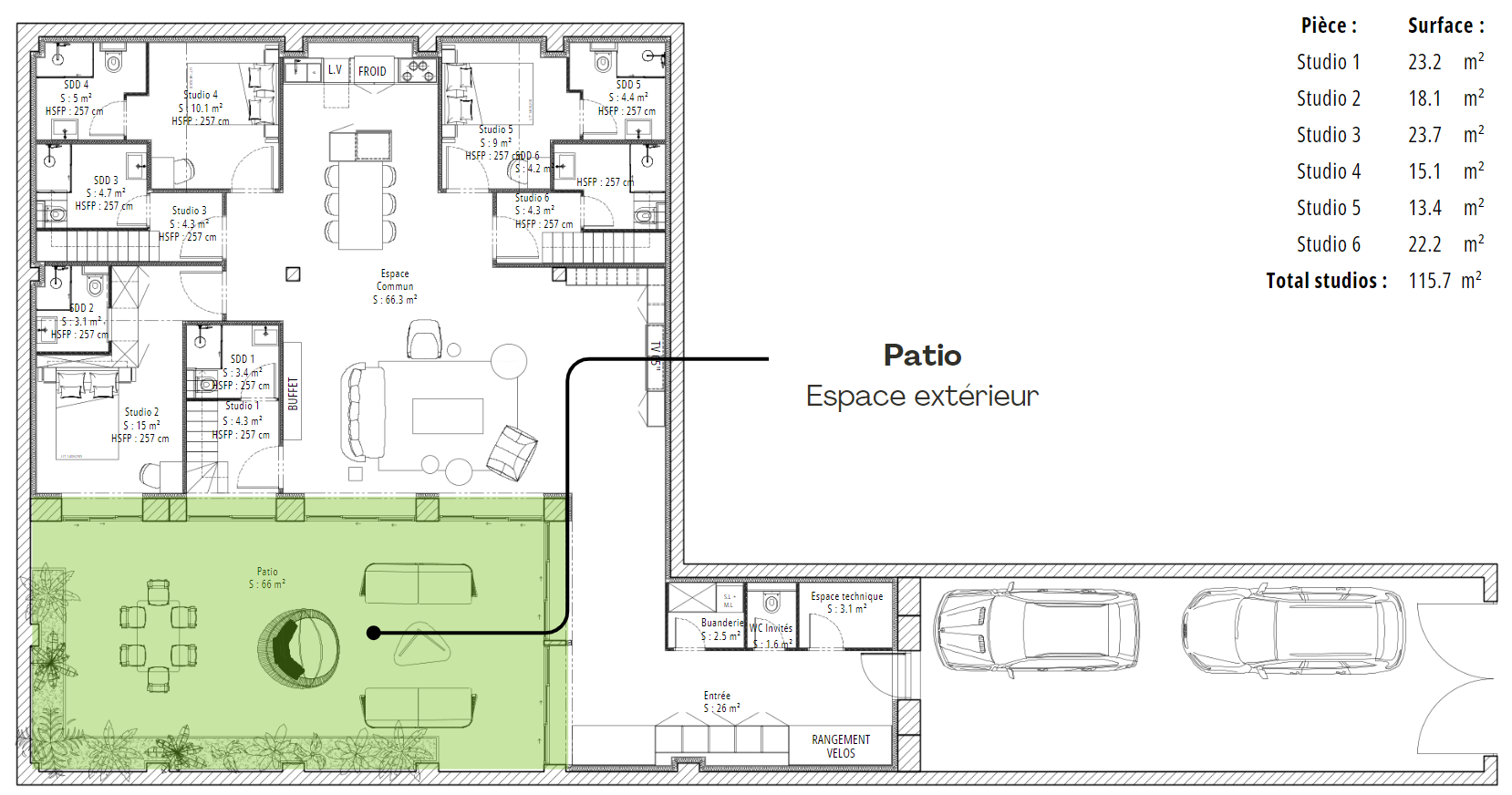
Pour un besoin économique, une nécessité de 6 chambres est à prévoir.
Pour que chaque chambre ait sa propre salle de douche et un accès à la lumière naturelle, un concept d’imbrication de cubes s’est vite installé, jouant sur les volumes et les échelles, permettant ainsi de dynamiser l’espace du loft.

